Leave a Message

Thank you for your message. We will be in touch with you shortly.

Explore Our Properties

Property Description

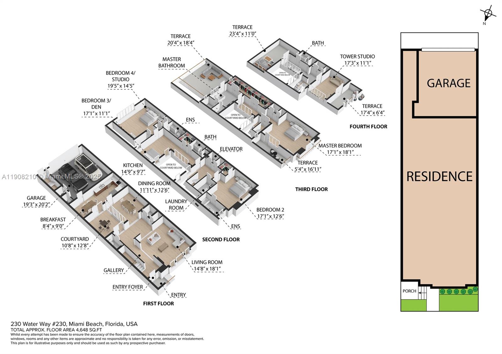
This Is What $748/SF Gets You on a Private Miami Beach Island! Live on guard-gated Aqua Island! Welcome to this chic townhome that lives like a house, offering a spacious floor-plan with 5 bedrooms & 5.5 bathrooms. Enjoy elegant sun-filled interiors, a gorgeous courtyard, multiple terraces, soaring high ceilings, media room, office, an eat-in Bulthaup gas kitchen, & elevator. The spacious primary suite boasts a private balcony, walk-in closet, & stunning bathroom with dual sinks, bidet, jacuzzi tub & separate shower. The home is complete with impact windows & doors, 2-car garage, & porcelain tile & wood floors. Private & serene waterfront community on 8.5 acres, one block away from the ocean & boardwalk! Offering 2 pools, gym, spa, conference area, ample parking, security, & concierge. Minutes to Bal Harbour Shops, A+ schools, & top dining!

Overview

Property Status
For Sale
MLS ID
A11908210
Property Type
Townhouse
Year Built
2005

Features & Amenities

Total Area
4,201 Sq.Ft.
Neighborhood
Normandy Shores
Water Frontage
Intracoastal Front
View Description
Intracoastal View, Skyline, Water View
Stories
4
Garage Spaces
2.0
Parking
2 Or More Spaces, Assigned, Valet
Heat Type
Central, Electric
Air Conditioning
Central Air, Electric
Appliances
Dishwasher, Dryer, Microwave, Gas Range, Refrigerator, Washer
Other Interior Features
First Floor Entry, Built-in Features, French Doors, Skylight, Walk-In Closet(s), Den/Library/Office, Media Room
HOA Amenities
Barbecue, Boat Dock, Child Play Area, Clubhouse-Clubroom, Exercise Room, Heated Pool, Hobby Room, Kitchen Facilities, Pool, Sauna, Spa/Hot Tub
Security Features
Fire Alarm, Smoke Detector, Secured Garage/Parking, Guard At Site, Other, Security Patrol
Other Exterior Features
Other, Barbeque, Courtyard
Elementary School
North Beach
Middle School
Nautilus
High School
Miami Beach
Sales Price
$2,799,000
Real Estate Tax
$24,647/yr
HOA
$3,612/mo

Downloads

230 Water Way

Schedule a Tour

We would love to help you see this beautiful home! As a full-service brokerage, we can help you tour. Please submit an offer, and answer questions about the buying process.

Thank you

for your interest in 230 Water Way, Miami Beach, FL 33141

230 Water Way
Navigate
Normandy Shores

Explore Normandy Shores

A waterfront enclave with Mediterranean charm and easy access to Miami Beach amenities.

read more
230 Water Way
explore in 3d

Mortgage Calculator

Estimate your monthly mortgage payment, including the principal and interest, property taxes, and HOA. Adjust the values to generate a more accurate rate.
$0,000 Your Payment 20 15 65
$0,000 Your Payment

I'm Interested In

230 Water Way

or
  • CallNancy Batchelor

    License #416207

    (305) 903-2850
  • Connect with Nancy Batchelor

    DO NOT REMOVE THIS LINE

    @nancybatchelorteam